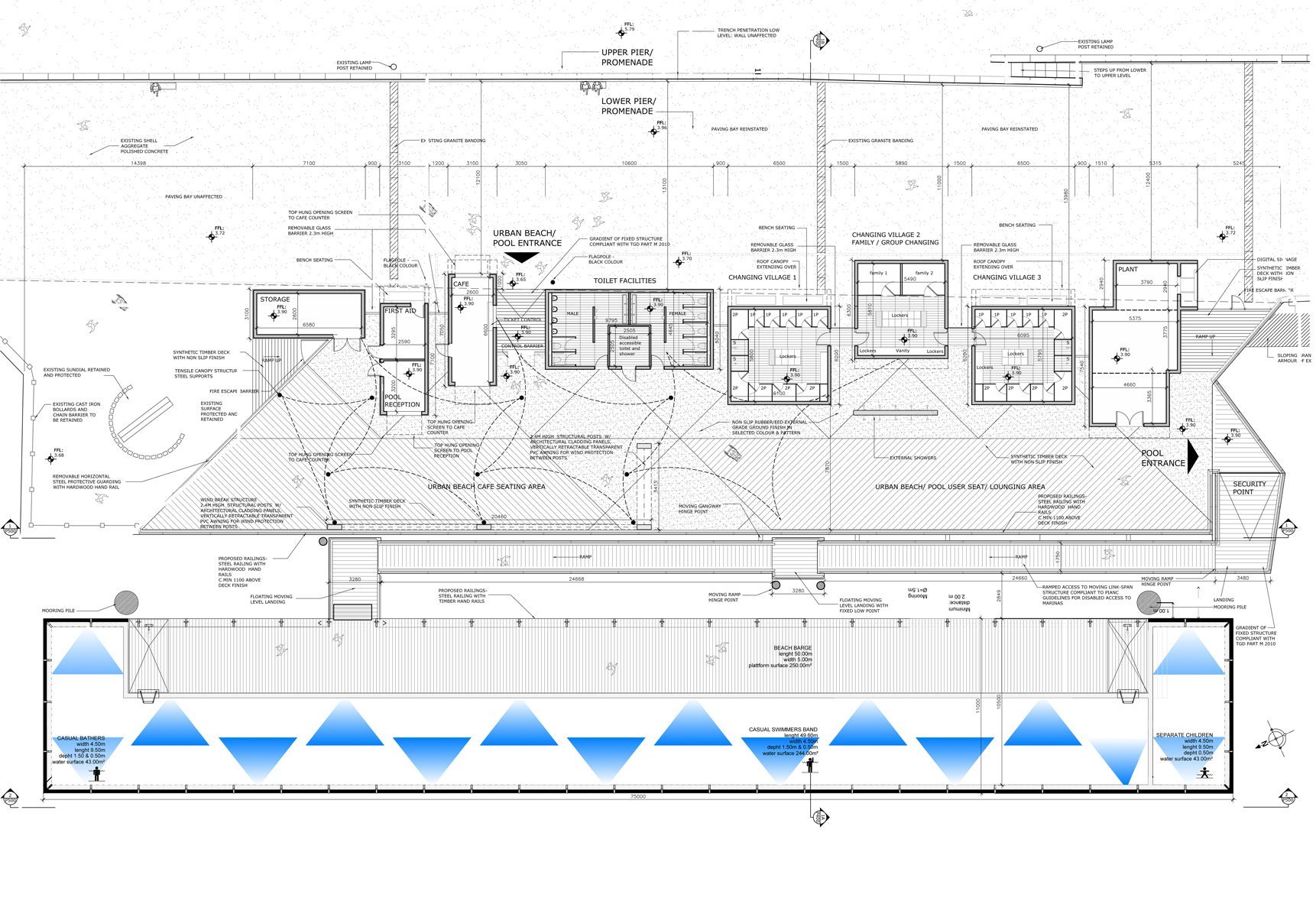
Das Projekt Urban Beach im Hafen von Dun Laoghaire, Dublin, ist ein Gemeinschaftsprojekt der Büros Arup, FKP und Wilk-Salinas Architekten für die Dun Laoghaire Harbour Company: FKP als ortsansässiges Büro aus Dublin hat seine Sportstätten-Erfahrung eingebracht, Wilk-Salinas Architekten ihr großes Know-how als Schwimmbadbauer einfließen lassen und Arup seine ingenieurtechnische Projektleiter-Erfahrung beigesteuert.
Herausgekommen ist ein facettenreiches Schwimmbadprojekt, das auf dem attraktiven Ostpier der viktorianischen Hafenanlage seinen Standort hat. Durch seine pfiffige Konstruktion mit integrierter Energiegewinnung ist der Dun Laoghaire Pool zudem zu einem Aushängeschild für einen ökologisch ausgerichteten Freizeitbetrieb geworden.
Bauherr: Dun Laoghaire Harbour Company
Projektleitung: Arup (Niederlassung Irland)
Architekten: Wilk-Salinas Architekten
Architekten: Fitzgerald Kavanagh and Partners
Mitarbeiter: Luis Salinas, Maria Ganter
Photomontagen: Brady Shipman Martin








