Wilk Salinas Achitekten
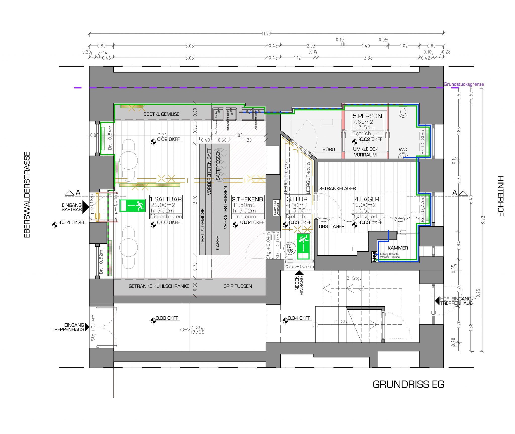
Refurbishment of an old shop as the new “The Juicery”, with an innovative range of juices and mixed drinks.
Client: Seydi Dogmus Architects: Wilk-Salinas Architekten Assistants: Maria Ganter