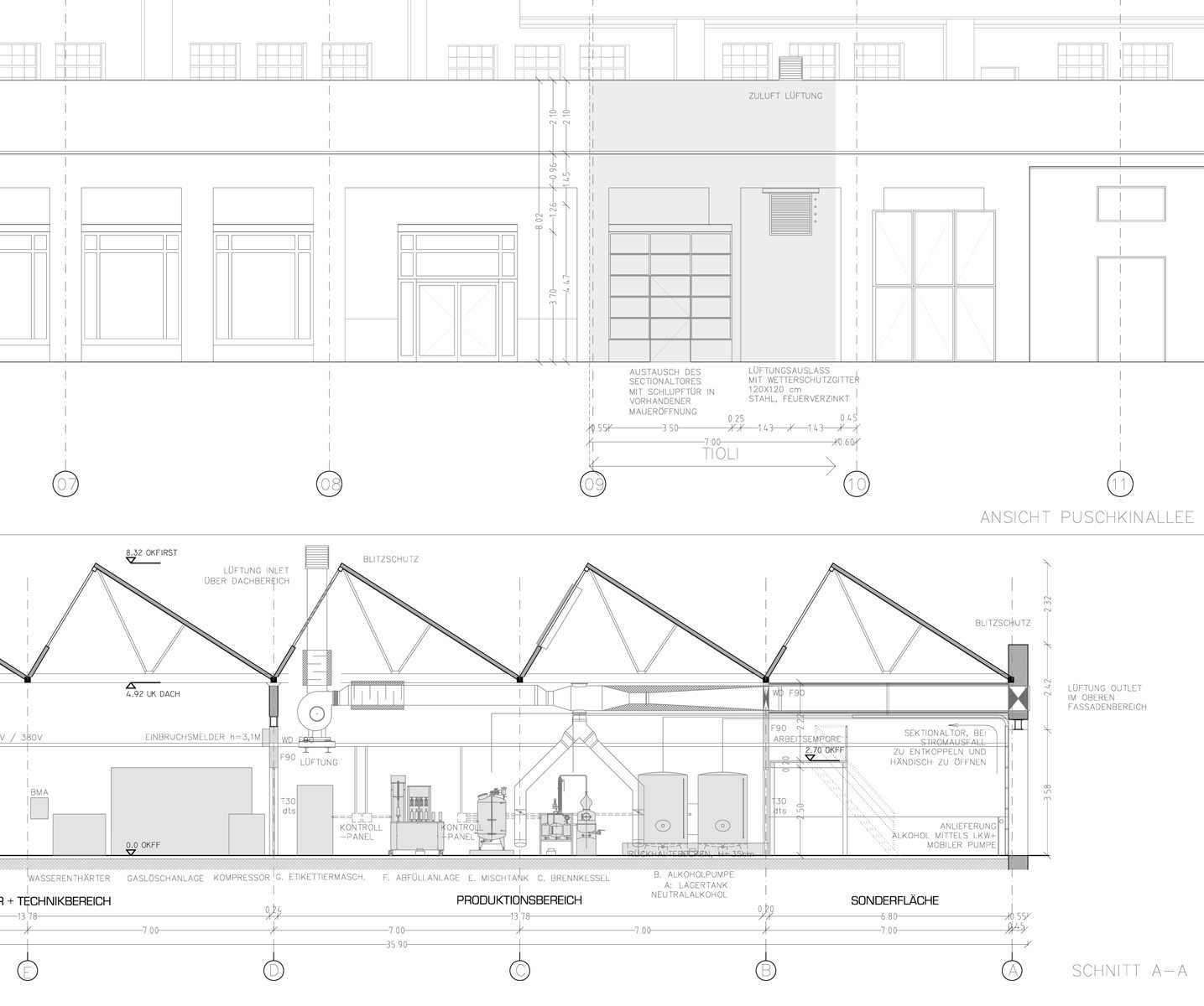
Our/Berlin ist der Name eines in der Hauptstadt produzierten Wodkas. Das dazugehörige und von Wilk-Salinas Architekten realisierte Produktionsareal untergliedert sich in Destillerie, Lager und Eventbereich mit angeschlossenem Verkaufsbüro. Vom Ausgaberaum aus sind über eine stählerne Treppe auch die Büroarbeitsplätze auf einer hierfür eigens eingezogenen Hochparterre-Plattform zu erreichen. Die Destillerie bildet das Zentrum der gesamten Anlage ? und dies nicht nur räumlich gesehen, sondern auch im Hinblick auf ihre technische Komplexität und den diversen Anforderungen beim Thema Sicherungstechnik.
Bauherr: Tioli GmbH & Co. KG
Architekten: Wilk-Salinas Architekten
Mitarbeiterin: Vero Zadworna
Bauleitung: Stefan Kluth









