Projects
Donetsk 2012
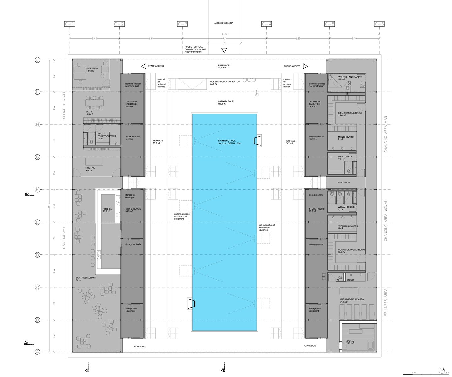
Terraced wellness-landscape with integrated gastronomy and view over the surrounding river scenery make for an extraordinary sunbathing and swimming experience. By means of a low-cost two-ply membrane covering the structure and easy to apply, the open-air swimming venue can be turned into an indoor pool and lounge area during the cold season.
Client: LLC Donbass-Industry
Architects: Wilk-Salinas Architekten
Civil engineer/Textile Construction: z3rch, Sergio Leiva






