Projekte
Donetsk 2012
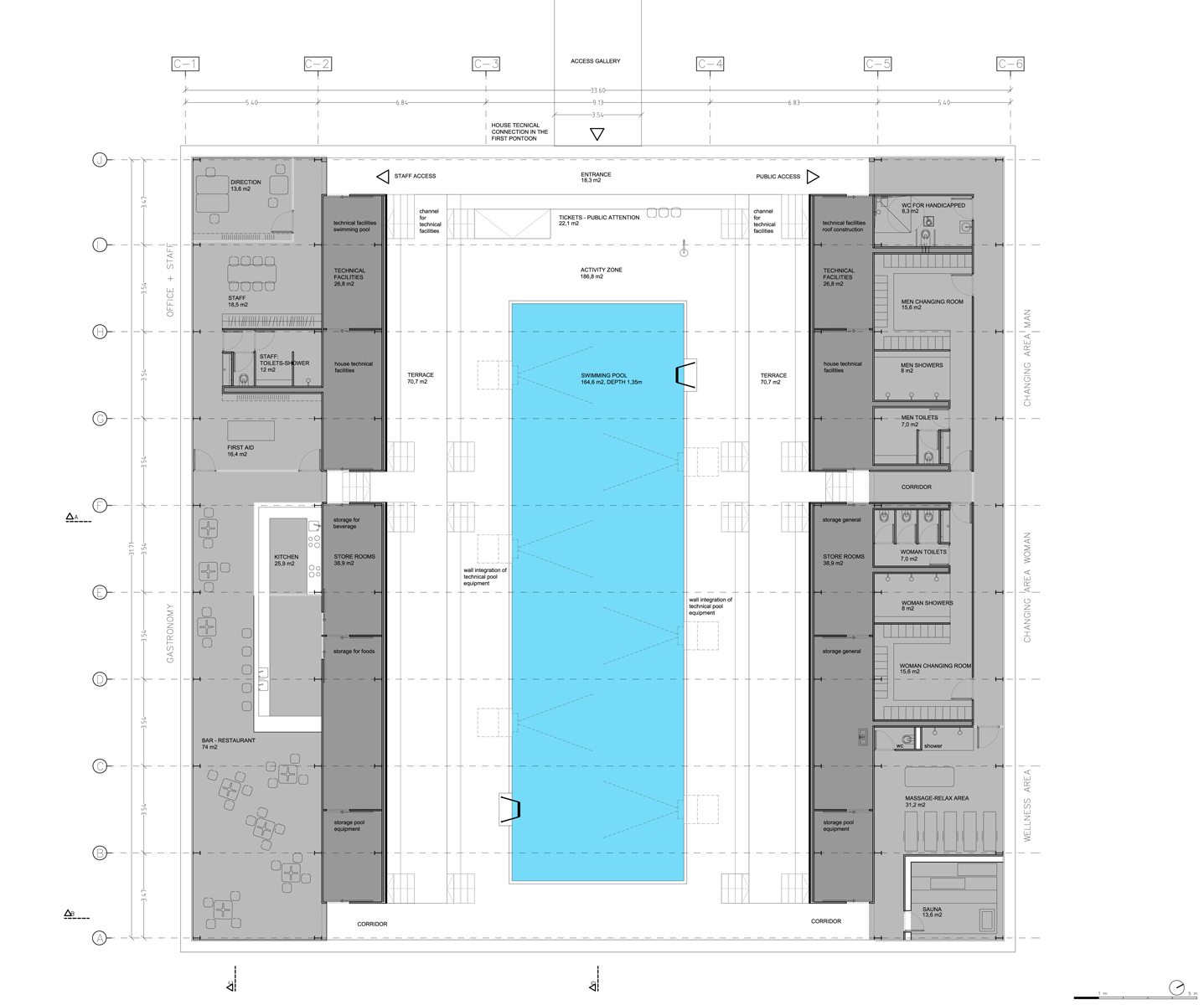
Mit dem Marienkäfer 2 in Donezk haben Wilk-Salinas Architekten eine terrassenförmige Wellness-Landschaft mit integrierter Gastronomie und freier Sicht auf die die Anlage umgebende Flusslandschaft geschaffen. Hier wird das Schwimmen zum echten Erlebnis. Besonders praktisch: Mittels einer zweilagigen Membranüberdachung kann die offene Bäderlandschaft während der Wintermonate mit einfachsten Mitteln in eine attraktive Indoor-Location verwandelt werden.
Bauherr: LLC Donbass-Industry
Architekten: Wilk-Salinas Architekten
Bau- und Textilbauingenieur: z3rch, Sergio Leiva






