Projects
Berlin 2011
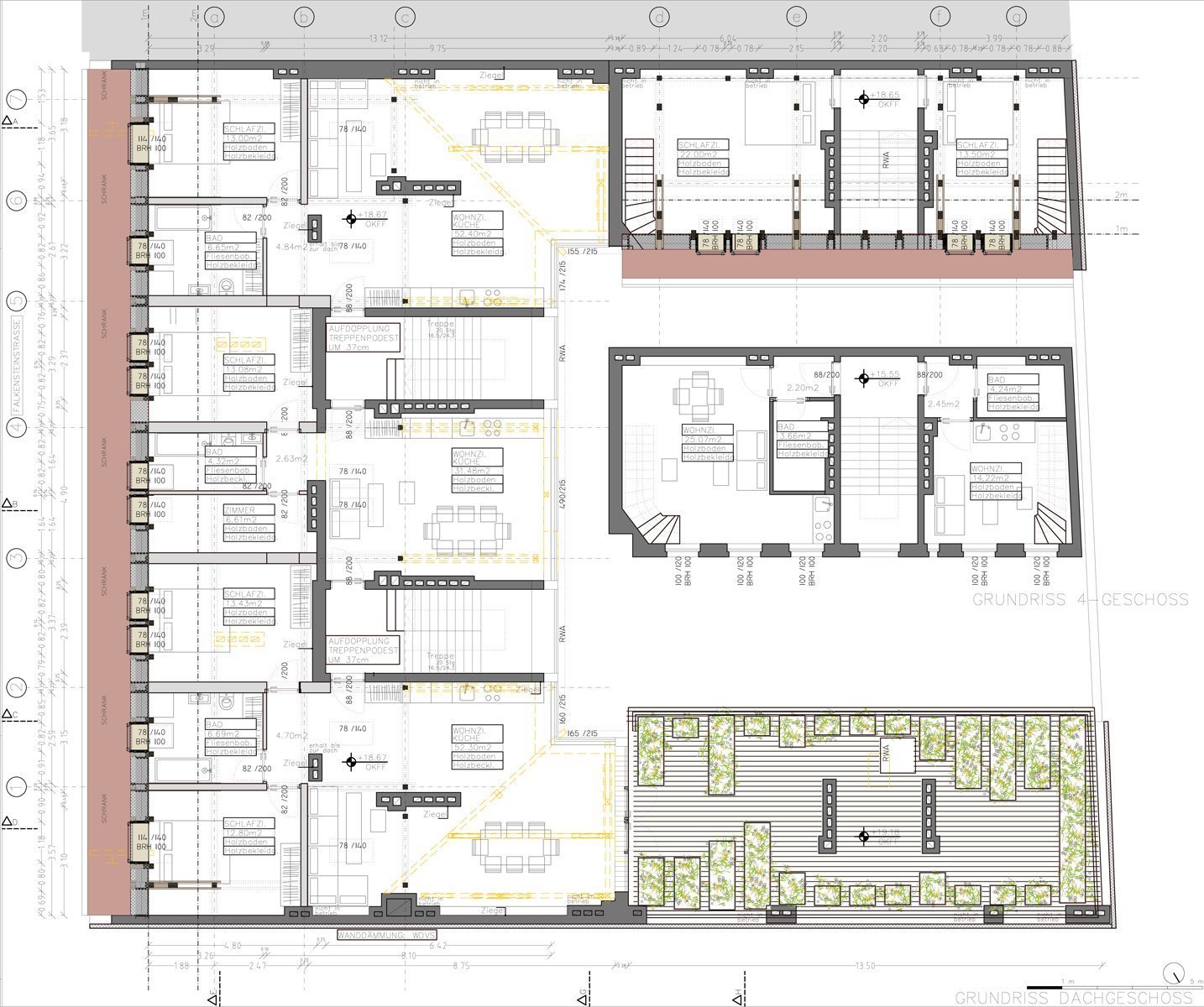
The transformation of an empty penthouse into three apartments is created by using mobile walls, having the advantage of flexible distribution within the space according to the needs and wishes of the tenant. The incorporation of a rooftop garden alongside a general courtyard transformation have increased the green space square metres of the building by 75%.
Client: Ralf Schmidt
Architects: Wilk-Salinas Architekten


