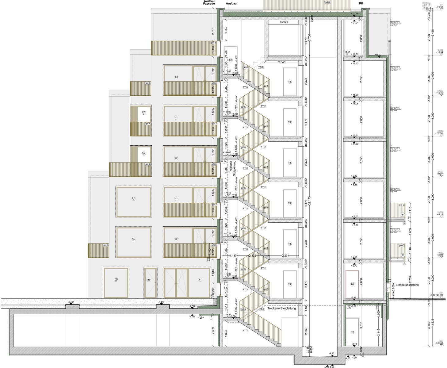
G63 Neu: Neubau eines 7-geschossigen Wohn- und Geschäftshauses mit 16 Wohneinheiten plus Tiefgarage im Prenzlauer Berg. Das Gebäude schließt die ehemalige Baulücke zum Straßenraum mit einer ortstypischen Lochfassade. Durch die Verwendung von STB-Fertigteilen und einer erdgeschossigen Metallverkleidung, hebt sich diese in ihrer optischen Gestaltung deutlich vom baulichen Umfeld ab.
Bauherr: Angel Nieto NIBER – NBAP 3 GmbH c/o Niber Reality GmbH
Architekten: Wilk-Salinas Architekten
Statiker: Ingenieurbüro Glosch
Haustechniker: Planungsbüro Waidhas GmbH
Gründungsstatiker: IFK Ingenieurbüro für Geotechnik GmbH
Brandschützer: BBIG Berliner Brandschutz Ingenieurgesellschaft mbH
Mitarbeiter: Z.Ayse, Hicsasmaz Heitele, Maria Ganter, Diego Martin, Joana Werra
Multimedia Designer: Luis Salinas




