Projekte
Berlin 2012
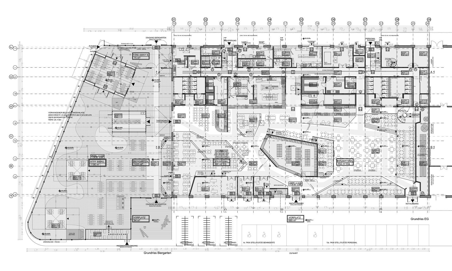
Für den Treptower Standort des legendären Berliner Clubs White Trash Fast Food, nach Betreiberwechsel heute unter dem Namen Festsaal Kreuzberg firmierend, wurde in einer denkmalgeschützten Industriehalle eine weitläufige Nutzfläche für einen kulturellen Angebotsmix auf zwei Ebenen konzipiert. Im Event-Portfolio: ein Restaurant, eine Konzerthalle, eine Kochschule, ein Tattoo-Studio mit angeschlossenem Barbershop und ein riesiger Biergarten.
Bauherr: White Trash fast Food, Wally Potts
Architekten, Planer: Wilk-Salinas Architekten
Mitarbeiterin: Maria Ganter
Architekten, Bauleitung: Studio Karhard









